10 Taber Street # 301 Boston, MA 02119

Active

$620,550
Price
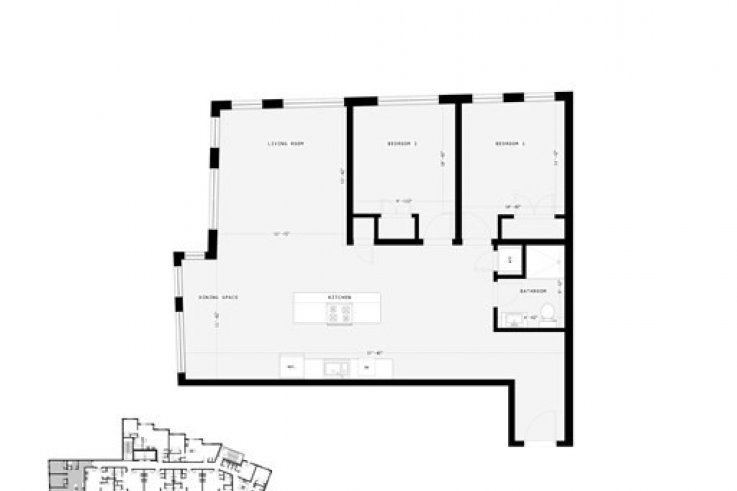
2
Beds
1
Baths
985 sqft
$630 / sqft

About

Marvel at this 6-story condominium building offering 45 residences with concierge service located just inside Roxbury's Nubian Square. This bright, corner 2 bedroom home faces Nubian Station, has South and East facing windows and boasts an accommodating floor plan and sizable bedrooms. The open-concept home has a two-tone kitchen, oak-hardwood and tile flooring, 9 foot ceilings throughout w/ ambient recessed lighting, triple-pane windows, elegant bathroom, an elite Samsung kitchen-appliance package & in-unit Bosch w/d set. This quiet, weather-tight building is wrapped in terracotta siding, ArmorWall panels, sprayed with 5inches of r38 insulation and features a residential lobby, elevators & includes heat/hot water in the HOA fee. Near Boston Public School HQ, revamped Boston Public Library, BMC and Longwood Medical Center, Northeastern Uni., Silver Line & Roxbury Crossings T Orange Line, highway access, banks, parks, grocery shopping and other developments.

  • Style Mid-Rise
  • Property Type Condominium/Co-Op
  • City Boston
  • County Suffolk
  • MLS# 72772566
  • Built 2021
  • Lot Size - sqft

Location

Interior Features

Bathroom Information

  • # of Bathrooms (Full) : 1
  • # of Bathrooms (1/2) : 0
  • Master Bathroom : No

Exterior Features

Exterior Features

  • Roof : Rubber
  • Exterior : Other (See Remarks)

Parking Features

  • No parking
  • Garage Parking :
  • Garage Space : 0
  • Open Parking Space :

Utilities

Utilities Information

  • Water Source : City/Town Water
  • Sewer and Water :
  • Water Front :
  • Hot Water : Natural Gas

Property/Lot Details

Lot Information

  • Living Area (sqft) : 985
  • Lot Size in Acres :

Nearby Similar Homes

$2,299,000

  • 3 bd
  • 3 ba
  • 1,664 sqft

100 Lovejoy Wharf # 11D

Boston, MA 02114

$2,200,000

  • 2 bd
  • 2 ba
  • 1,561 sqft

505 Tremont St # 210

Boston, MA 02116

$2,100,000

  • 3 bd
  • 3 ba
  • 1,699 sqft

1 Charles St. S # 1404

Boston, MA 02116

$725,000

  • 2 bd
  • 1 ba
  • 750 sqft

90 East Brookline St # 3

Boston, MA 02118

$899,000

  • 1 bd
  • 1 ba
  • 567 sqft

135 Seaport Boulevard # 1908

Boston, MA 02210

$1,295,000

  • 1 bd
  • 1 ba
  • 812 sqft

133 Seaport Boulevard # 1105

Boston, MA 02210

Go Tour This Home

It's free, with no obligation — cancel anytime

Nearby Similar Homes

Best Selling