33 Sleeper St # 409 Boston, MA 02210

Active

$822,000
Price
1
Beds
1
Baths
1,140 sqft
$722 / sqft

About

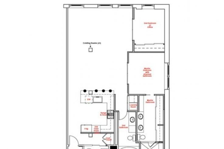
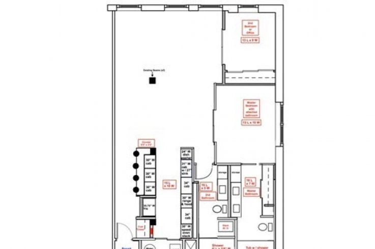
CORNER brick and beam loft with lots of light and high ceilings. Best valued condo in Seaport District! Currently 1 bed / 1 bath but can easily be renovated to 2 bed / 2 bath with ensuite master bath (see pics for 2 potential floorplans). Unique chance to finish spacious loft with Buyer’s own finishes. Kitchen and enormous bathroom left at studs/subfloor for you to make your dream condo. Condo is valued at $1.25M as a 2 bed / 2 bath renovated condo (closest comps are 15 Sleeper St #206 and #205). Buyer will have $250K+ equity immediately after the renovation! NEW GE stainless-steel kitchen appliances (with 2 ovens). NEW hand-scraped hickory Shaw floors (with soundproofing). NEW Restoration windows, Carrara marble sills, and blackout shades. NEW top-rated Bryant Evolution HVAC unit. Paid rental parking (in courtyard) or resident sticker (on street). Well-managed luxury building with doorman, video-entry security system, glass-walled elevator, plant atrium lobby. Private showings only.

  • Style Mid-Rise,Loft
  • Property Type Condominium/Co-Op
  • City Boston
  • County Suffolk
  • MLS# 72769931
  • Built 1911
  • Lot Size 1,140 sqft

Location

Interior Features

Bathroom Information

  • # of Bathrooms (Full) : 1
  • # of Bathrooms (1/2) : 0
  • Master Bathroom :

Exterior Features

Exterior Features

  • Roof : Rubber
  • Exterior : Brick,Stucco
  • Construction Material : Brick,Post & Beam

Parking Features

  • On Street Permit,Assigned,Deeded,Available for Purchase
  • Garage Parking :
  • Garage Space : 0
  • Open Parking Space :

Utilities

Utilities Information

  • Water Source : City/Town Water
  • Sewer and Water :
  • Water Front :
  • Hot Water : Electric

Property/Lot Details

Lot Information

  • Living Area (sqft) : 1,140
  • Lot Size in Acres : 0.03

Nearby Similar Homes

$2,044,000

  • 2 bd
  • 2 ba
  • 1,406 sqft

135 Seaport Boulevard # 1020

Boston, MA 02210

$999,000

  • 1 bd
  • 1 ba
  • 664 sqft

135 Seaport Boulevard # 1008

Boston, MA 02210

$1,379,900

  • 2 bd
  • 2 ba
  • 1,108 sqft

99 Sumner # 517

Boston, MA 02128

$1,600,000

  • 3 bd
  • 2 ba
  • 1,440 sqft

1650 Commonwealth Avenue # 606

Boston, MA 02135

$749,900

  • 4 bd
  • 3 ba
  • 2,185 sqft

1909 River Street # 2

Boston, MA 02136

$739,000

  • 1 bd
  • 1 ba
  • 805 sqft

340 WEST 2ND STREET # 301

Boston, MA 02127

Go Tour This Home

It's free, with no obligation — cancel anytime

Nearby Similar Homes

Best Selling