114 South St Douglas, MA 01516

Active

$125,000
Price

About

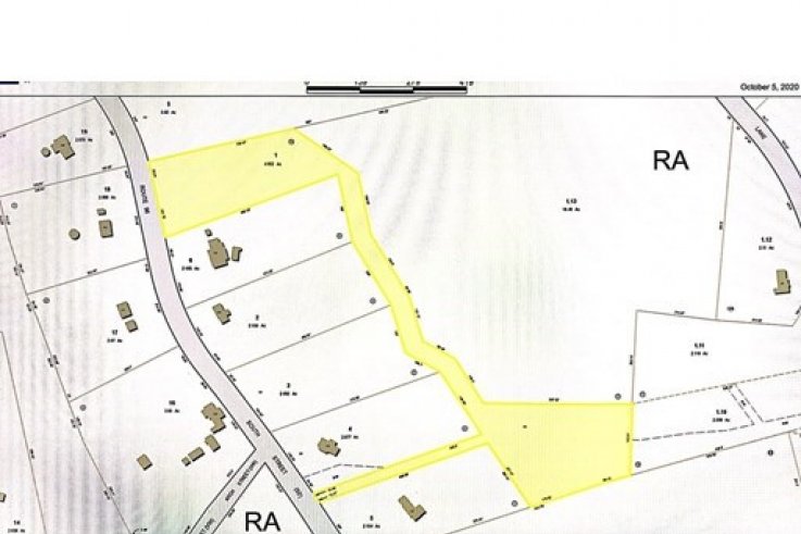
Tired of searching for the "Perfect Home" in this crazy market, why not Build your Perfect Home? Set back from the road, this beautiful almost 5 acre lot is exactly what you have been looking for. Come Bring your vision to life, on your terms & your time frame. Schedule a showing today, and come imagine what could be.

  • Property Type Land
  • City Douglas
  • County Worcester
  • MLS# 72741021
  • Lot Size 213,575 sqft

Location

Interior Features

Bathroom Information

  • # of Bathrooms (Full) :
  • # of Bathrooms (1/2) :
  • Master Bathroom :

Utilities

Utilities Information

  • Water Source : Private
  • Sewer and Water :
  • Water Front :
  • Hot Water :

Property/Lot Details

Lot Information

  • Living Area (sqft) : N/A
  • Lot Size in Acres : 4.90

Nearby Similar Homes

$375,000

  • 3 bd
  • 2 ba
  • 1,705 sqft

VG1 Compass Point Drive # INT.

Douglas, MA 01516

$145,000

  • — bd
  • — ba
  • — sqft

48 Woodland Rd

Douglas, MA 01516

$114,900

  • — bd
  • — ba
  • — sqft

112 Webster Street

Douglas, MA 01516

$2,929,000

  • — bd
  • — ba
  • — sqft

Lot 1 North St

Douglas, MA 01516

$499,000

  • 3 bd
  • 2 ba
  • 2,396 sqft

114 West St.

Douglas, MA 01516

$110,000

  • — bd
  • — ba
  • — sqft

35 Hemlock Street

Douglas, MA 01516

Go Tour This Home

It's free, with no obligation — cancel anytime

Nearby Similar Homes

Best Selling