55 Meyer Street # 55 Boston, MA 02130

Active

$739,000
Price
3
Beds
3
Baths
1,487 sqft
$497 / sqft

About

Only one left! Introducing 2 stunning new construction townhomes in Jamaica Plain currently under construction. These high-end spacious homes feature 3 bedrooms and 3.5 baths. The first floor features an open floor plan with a gorgeous chef's kitchen with stone countertops, stainless steel appliances, open to the dining room and living room with a fireplace. Second floor with two bedrooms each with an en-suite bathroom. The top-level features an additional bedroom with an en-suite spa-like bath with a tiled stand-up shower. Additional features include hardwood floors throughout, high ceilings, crown molding, recessed lighting, tons of storage, large basement, central air, private patio and yard, first-floor laundry, and fiber-cement siding. Close to transportation, shops, restaurants, parks, and all that the JP Bourne neighborhood has to offer. Pictures are of a similar condos built by the same developer.

  • Style Townhouse,Rowhouse,Half-Duplex
  • Property Type Condominium/Co-Op
  • City Boston
  • County Suffolk
  • MLS# 72696819
  • Built 2020
  • Lot Size - sqft

Location

Interior Features

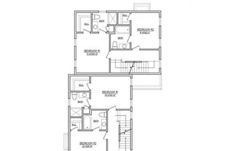
Master Bedroom Information

  • Dimensions : 17X12
  • Second Floor

Bedroom #2 Information

  • Dimensions : 13X11
  • On Second Floor

Bedroom #3 Information

  • Dimensions : 13X9
  • On Third Floor

Bathroom Information

  • # of Bathrooms (Full) : 3
  • # of Bathrooms (1/2) : 1
  • Master Bathroom : Yes

Exterior Features

Exterior Features

  • Roof : Asphalt/Fiberglass Shingles
  • Exterior : Fiber Cement Siding
  • Construction Material : Frame

Parking Features

  • Off-Street
  • Garage Parking : Attached,Insulated
  • Garage Space : 0
  • Open Parking Space :

Utilities

Utilities Information

  • Water Source : City/Town Water
  • Sewer and Water :
  • Water Front :
  • Hot Water :

Property/Lot Details

Lot Information

  • Living Area (sqft) : 1,487
  • Lot Size in Acres :

Nearby Similar Homes

$439,000

  • 1 bd
  • 1 ba
  • 555 sqft

1 Coppersmith Way # 1

Boston, MA 02128

$1,295,000

  • 1 bd
  • 1 ba
  • 812 sqft

133 Seaport Boulevard # 1105

Boston, MA 02210

$1,599,900

  • 2 bd
  • 2 ba
  • 1,182 sqft

100 Shawmut Avenue # 208

Boston, MA 02118

$1,999,000

  • 3 bd
  • 2 ba
  • 2,534 sqft

377 WEST FIRST # 1

Boston, MA 02127

$699,000

  • 3 bd
  • 2 ba
  • 1,210 sqft

160 London St # 4

Boston, MA 02128

$625,000

  • 3 bd
  • 2 ba
  • 1,200 sqft

236 Lexington St # 1

Boston, MA 02128

Go Tour This Home

It's free, with no obligation — cancel anytime

Nearby Similar Homes

Best Selling