5 Conant Rd Westwood, MA 02090

Active

$1,400,000
Price
5
Beds
4
Baths
3,599 sqft
$389 / sqft

About

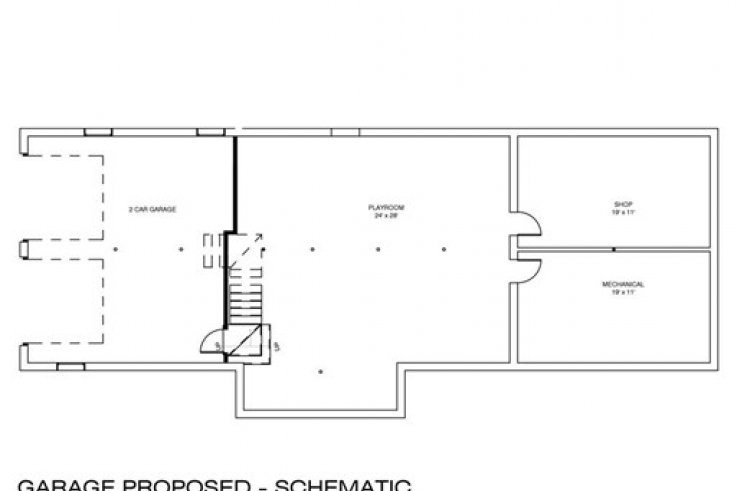
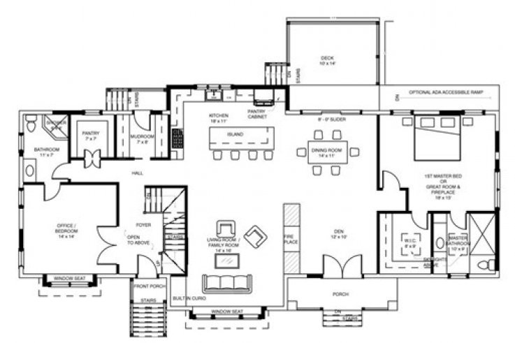
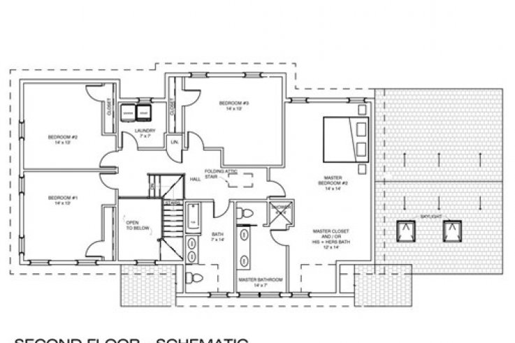
Location is key, 1 mile to the highway, 1 mile to Westwood Center, 1 mile to Hale Reservation. Take advantage of this rare opportunity to customize this ranch style home on a convenient Westwood lot. A complete gut renovation (keeping approximately 90% of the poured concrete foundation). All plans were designed to be ADA accessible or convertible. This plan features 9-foot first floor ceilings and cathedral ceiling, second driveway from Conant Rd leading to a two-car garage, a flexible floor plan offering 2 master suites, one of which is on the first floor. The open floor plan will be perfect for entertaining, along with a first-floor office and a convenient mudroom. The second-floor features three spacious bedrooms along with a second master suite and laundry. Easy access to Rt 95, Commuter/Amtrak Station & shopping. Pricing will vary depending on the plan & finishes. Choose the 2 story plan or one of the ranch style plans.

  • Style Colonial,Craftsman
  • Property Type Single Family
  • City Westwood
  • County Norfolk
  • MLS# 72688365
  • Built 1953
  • Lot Size 15,300 sqft

Location

Interior Features

Master Bedroom Information

  • Dimensions : 14X14
  • Second Floor

Bedroom #2 Information

  • Dimensions : 14X13
  • On Second Floor

Bedroom #3 Information

  • Dimensions : 14X13
  • On Second Floor

Bedroom #4 Information

  • Dimensions : 14X13
  • On Second Floor

Bathroom Information

  • # of Bathrooms (Full) : 4
  • # of Bathrooms (1/2) : 0
  • Master Bathroom : Yes

Exterior Features

Exterior Features

  • Roof : Asphalt/Fiberglass Shingles,Rubber
  • Exterior : Shingles,Fiber Cement Siding
  • Construction Material : Frame,Stone/Concrete,Conventional (2x4-2x6),Cement Board

Parking Features

  • Paved Driveway
  • Garage Parking : Attached,Under,Garage Door Opener
  • Garage Space : 2
  • Open Parking Space :

Utilities

Utilities Information

  • Water Source : City/Town Water
  • Sewer and Water :
  • Water Front :
  • Hot Water : Natural Gas

Property/Lot Details

Lot Information

  • Living Area (sqft) : 3,599
  • Lot Size in Acres : 0.35

Nearby Similar Homes

$679,000

  • 2 bd
  • 2 ba
  • 1,320 sqft

120 University Ave # 2408

Westwood, MA 02090

$899,000

  • 4 bd
  • 2 ba
  • 2,365 sqft

38 Oxford Road

Westwood, MA 02090

$2,999,000

  • 5 bd
  • 5 ba
  • 6,955 sqft

288 Summer St

Westwood, MA 02090

$579,000

  • 1 bd
  • 1 ba
  • 962 sqft

130 University Avenue # 1402

Westwood, MA 02090

$1,195,000

  • 2 bd
  • 2 ba
  • 2,424 sqft

74 Abbey Road # 74

Westwood, MA 02090

$2,495,900

  • 4 bd
  • 4 ba
  • 4,234 sqft

183 High Street

Westwood, MA 02090

Go Tour This Home

It's free, with no obligation — cancel anytime

Nearby Similar Homes

Best Selling