5 Resnik Road Plymouth, MA 02360

Active

$2,000,000
Price

About

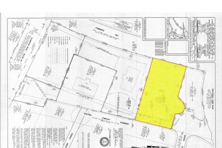
Located at the entrance to the Plymouth Industrial Park and across Commerce Way from Colony Place. Minutes to Routes 3 and 44, high visibility, 30,000 cars per day. The property has water, sewer, drainage, and electric transformer in place. Ready permitting. Allowed use retail/office. Seller will also consider a pad lease or build a building for lease. Seller would consider selling one lot (one acre each) for $1M. Ask Listing Agent for details.

  • Property Type Land
  • City Plymouth
  • County Plymouth
  • MLS# 72607321
  • Lot Size 87,120 sqft

Location

Interior Features

Bathroom Information

  • # of Bathrooms (Full) :
  • # of Bathrooms (1/2) :
  • Master Bathroom :

Utilities

Utilities Information

  • Water Source : Public,On-Site
  • Sewer and Water :
  • Water Front :
  • Hot Water :

Property/Lot Details

Lot Information

  • Living Area (sqft) : N/A
  • Lot Size in Acres : 2.00

Nearby Similar Homes

$997,000

  • 2 bd
  • 2 ba
  • 1,521 sqft

150 Water Street # 302

Plymouth, MA 02360

$599,000

  • — bd
  • — ba
  • — sqft

41 Industrial Park Road

Plymouth, MA 02360

$389,000

  • 1 bd
  • 1 ba
  • 804 sqft

521 Colony Pl # 4-105

Plymouth, MA 02360

$1,398,000

  • 2 bd
  • 2 ba
  • 4,541 sqft

55-57 Court St

Plymouth, MA 02360

$849,000

  • 3 bd
  • 1 ba
  • 1,786 sqft

37 Highland Terrace

Plymouth, MA 02360

$369,000

  • 1 bd
  • 1 ba
  • 840 sqft

521 Colony Pl # 1-107

Plymouth, MA 02360

Go Tour This Home

It's free, with no obligation — cancel anytime

Nearby Similar Homes

Best Selling