342 Maple St Douglas, MA 01516

Active

$375,000
Price

About

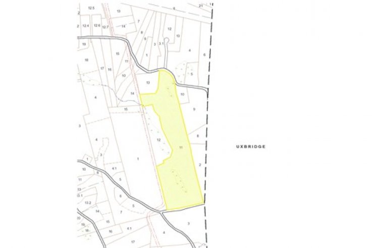
Attention Builders 38.57 Acres located a short distance from Blissful Meadows golf course, with 800'+- frontage on Yew Street and 400'+- frontage on Maple Street, some wetland, potential for 5-6 front lots (81P lots) these would be large oversized lots, in area of newer home, additional land available ask for details. Sellers would prefer to sell entire parcel at once but will entertain offers for individual lots as well. potential to be combined with MLS#72554124 for additional frontage and area

  • Property Type Land
  • City Douglas
  • County Worcester
  • MLS# 72554123
  • Lot Size 1,680,110 sqft

Location

Interior Features

Bathroom Information

  • # of Bathrooms (Full) :
  • # of Bathrooms (1/2) :
  • Master Bathroom :

Utilities

Utilities Information

  • Water Source : Private
  • Sewer and Water :
  • Water Front :
  • Hot Water :

Property/Lot Details

Lot Information

  • Living Area (sqft) : N/A
  • Lot Size in Acres : 38.57

Nearby Similar Homes

$375,000

  • 3 bd
  • 2 ba
  • 1,705 sqft

VG1 Compass Point Drive # INT.

Douglas, MA 01516

$88,000

  • — bd
  • — ba
  • — sqft

75 Old Farm Road

Douglas, MA 01516

$544,900

  • 4 bd
  • 2 ba
  • 2,312 sqft

lot 30 Woodland Road

Douglas, MA 01516

$110,000

  • — bd
  • — ba
  • — sqft

35 Hemlock Street

Douglas, MA 01516

$425,000

  • 3 bd
  • 2 ba
  • 1,753 sqft

58 Chestnut

Douglas, MA 01516

$490,000

  • 6 bd
  • 3 ba
  • 3,817 sqft

9 B St

Douglas, MA 01516

Go Tour This Home

It's free, with no obligation — cancel anytime

Nearby Similar Homes

Best Selling